tel. 06.5815064 - 06.5812893
fax. 06.5899840 - cell. 346.9604336
Mostra il tuo immobile nella
cornice della città eterna!











































Portuense - santa silvia delizioso trilocale
€ 295.000 - 78mq - Rif. 2124
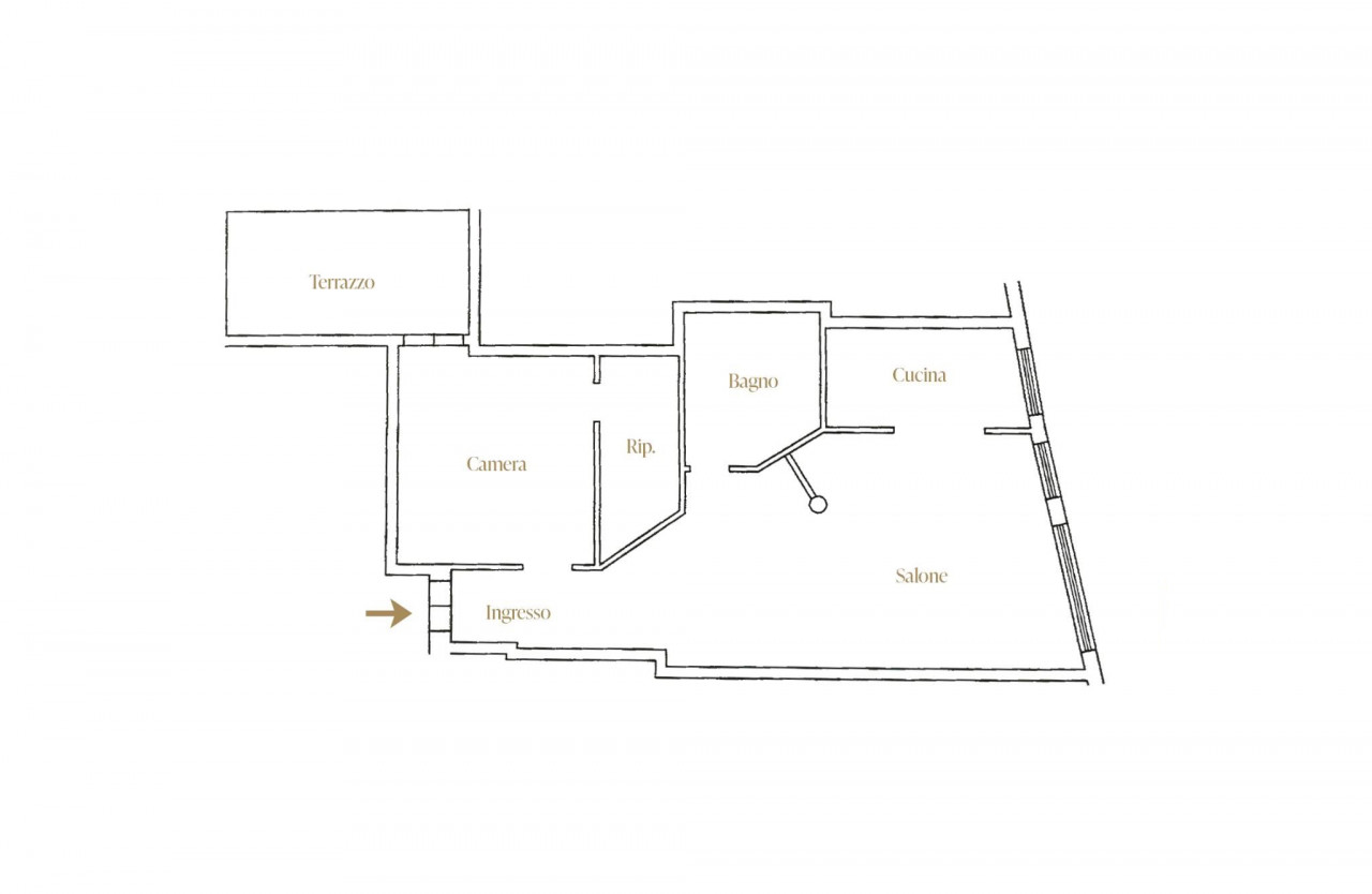
Portuense, Santa Silvia, adiacente via degli Irlandesi,contesto tranquillo, ben servito e collegato, in palazzina in cortina con servizio di portierato proponiamo delizioso appartamento completamente ristrutturato, molto luminoso, composto da: ingresso, salone con cucina a vista (eventualmente richiudibile come cucina separata abitabile), camera matrimoniale con ampia cabina armadio, ripostiglio, soppalco praticabile, bagno e spazio esterno. Possibilità seconda camera e secondo bagno. L'appartamento si vende anche parzialmente arredato.
Le presenti informazioni e planimetrie sono meramente indicative e non costituiscono elementi contrattuali. A tutela della Privacy non viene indicato l'indirizzo preciso e numero civico.
La Basit Servizi Immobiliari S.r.l. vanta un’esperienza dal 1985 nell’attività dell’intermediazione di immobili residenziali e commerciali.
Offriamo ai nostri clienti il massimo della professionalità, esperienza, competenza e supporto per tutta la fase del processo fino al raggiungimento dell’obiettivo, con passione e determinazione unite al codice deontologico e ad un nostro codice etico.
Da noi si trova il punto d’incontro tra aspettative e realtà grazie al nostro staff di professionisti che studiano servizi su misura per ogni tipo di clientela.
Il nostro scopo è la piena soddisfazione del cliente stesso in modo tale da rendere unico ed irripetibile un momento da ricordare.
I nostri clienti sono i migliori referenti e garanti della nostra professionalità.
La sede attuale é ubicata nel residenziale quartiere di Monteverde;
Basit: “ La realizzazione dei tuoi sogni”
Dettagli
- codice di riferimento: 2124
- anno di costruzione: 1960
- metri quadri: 78
- camere: 1
- classe energetica:

- I.P.E. 175,00 kWh/m2 anno
- altri ambienti: soggiorno - cucina - bagni - ripostigli - giardino
Contattaci
Roma, 00100 - Monteverde





