Monteverde - via vitellia - piano alto

€ 1.350 - 75sqm - Ref. 2128

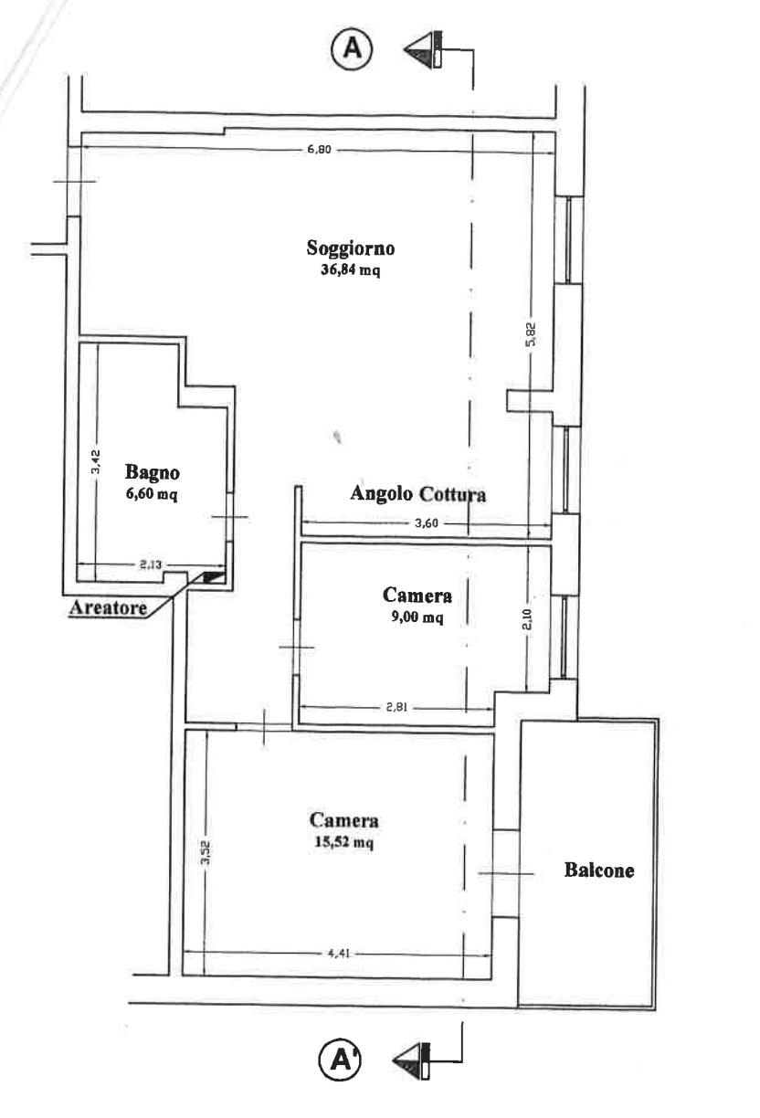
Monteverde, via Vitellia, a due passi dalla storica Villa Pamphili, in contesto molto tranquillo e verdeggiante, proponiamo appartamento piano alto, finemente ristrutturato di recente, luminosissimo e soleggiato, composto da: ingresso, salone con cucina a vista, camera matrimoniale, cameretta, bagno, ripostiglio, balcone abitabile con vista su villa Pamphili. Si affitta completamente arredato con contratto 3+2. Solo referenziati.


Le presenti informazioni e planimetrie sono meramente indicative e non costituiscono elementi contrattuali. A tutela della Privacy non viene indicato l'indirizzo preciso e numero civico.



La Basit Servizi Immobiliari S.r.l. vanta un’esperienza dal 1985 nell’attività dell’intermediazione di immobili residenziali e commerciali.
Offriamo ai nostri clienti il massimo della professionalità, esperienza, competenza e supporto per tutta la fase del processo fino al raggiungimento dell’obiettivo, con passione e determinazione unite al codice deontologico e ad un nostro codice etico.
Da noi si trova il punto d’incontro tra aspettative e realtà grazie al nostro staff di professionisti che studiano servizi su misura per ogni tipo di clientela.
Il nostro scopo è la piena soddisfazione del cliente stesso in modo tale da rendere unico ed irripetibile un momento da ricordare.
I nostri clienti sono i migliori referenti e garanti della nostra professionalità.
Vuoi vendere velocemente ed al miglior prezzo? Contattaci per una valutazione gratuita.

Basit: “ La realizzazione dei tuoi sogni”

Details

  • reference code: 2128
  • year of manufacture: 1965
  • square meters: 75
  • rooms: 2
  • energy class: G
  • I.P.E. 175,00 kWh/m2 anno
  • other areas: +++SOGGIORNO_ANGOLO_COTTURA+++ - +++BAGNI+++ - +++POGGIOLI+++ - +++RIPOSTIGLI+++

Contact us

Want more information on this ad? Call us at
Come and visit us at our headquarters in
Circonvallazione Gianicolense 123/A
Roma, 00100 - Monteverde

Position's property